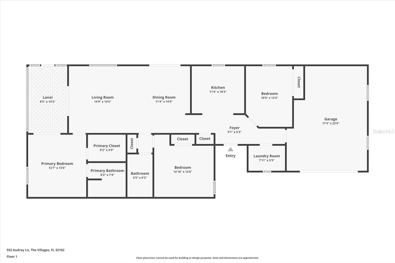
552 AUDREY LANETHE VILLAGES, FL 32162




Mortgage Calculator
Monthly Payment (Est.)
$1,638NEW ROOF COMING! Turnkey 3-bedroom, 2-bathroom Bonita Courtyard Villa in the Village of Amelia. Built with modern living in mind, this home features a 2007 HVAC system and a brand-new 2023 gas water heater. Step outside to enjoy a lush grass backyard or relax in the screened lanai and use the patio right off the dining room for grilling and entertaining. The interior boasts elegant plantation shutters in public areas, a phantom screen front door for added ventilation, and sliding screen doors on the garage for convenience. With luxury vinyl plank flooring, cozy carpet in two bedrooms, and durable linoleum in wet areas, this home is designed for both style and practicality. High ceilings and ceiling fans with light kits add to the airy ambiance, while the open floor plan and split bedroom layout ensure privacy and convenience. The thoughtfully designed split bedroom layout includes a pocket door for the guest bedroom and bath, ensuring privacy for you and your guests. Both bathrooms feature beautiful granite countertops. The master bedroom offers direct access to the lanai, complemented by an ensuite bath featuring dual sinks and a spacious shower. The third guest bedroom, which can double as an office, features LVP floors and a comfortable sofa bed. An interior laundry room adds to the convenience of this home. Located just a short walk from the Odell Recreation Center and Pool, and less than a mile from the Mallory Hill Country Club, golf, and Amelia Pool, this villa is perfectly situated for an active lifestyle. golf cart is available separately! Don’t miss the opportunity to make this beautiful villa your new home and start living the Villages dream.
| 26 minutes ago | Listing updated with changes from the MLS® | |
| 2 months ago | Listing first seen on site |
Listing information is provided by Participants of the Stellar MLS. IDX information is provided exclusively for personal, non-commercial use, and may not be used for any purpose other than to identify prospective properties consumers may be interested in purchasing. Information is deemed reliable but not guaranteed. Properties displayed may be listed or sold by various participants in the MLS Copyright 2025, Stellar MLS.
Last checked: 2025-11-04 04:43 PM EST
Did you know? You can invite friends and family to your search. They can join your search, rate and discuss listings with you.